物件詳細
| 物件種目 | 貸店舗事務所 |
|---|---|
| 賃料/管理費 | 364,271円(税込)/49,500円(税込) |
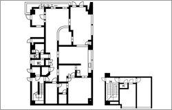
| 間取り | 左図参照 |
| 所在地 | 札幌市中央区南22条西11丁目1-48 |
| 交 通 | 札幌市電「石山通」徒歩1分 - - |
| 建物名 | M山鼻 |
| 号 室 | 2階 |
| 面 積 | 191.31㎡(57.87坪) |
| 築年月 | 1999年5月 |
| 構 造 | 鉄筋コンクリート造陸屋根4階建 |
| 総戸数 | - |
| 主要採光面 | - |
| 契約期間 | 3年 |
| 敷金/保証金 | 3ヶ月/- |
| 礼 金 | - |
| その他一時金 | - |
| その他維持費 | - |
| 駐車場 | 来客用含め5台有り(冬期間4台) |
| 駐輪場 | - |
| 火災保険 | 加入必須 |
| 現 況 | 空室 |
| 引渡日 | 即時 |
| 条 件 | 保証会社利用必須 |
| 設 備 | トイレ2箇所、エレベーター、電気 - - |
| 備 考 | 居抜き - - |
| 取引態様 | 媒介 |
| 仲介手数料 | 賃料の1ヶ月分 |
| 情報公開日 | 令和8年4月17日 |
| 物件番号 | 11-8 |









